A vendre appartement avec cour au calme Marseille 1er
Description du bien
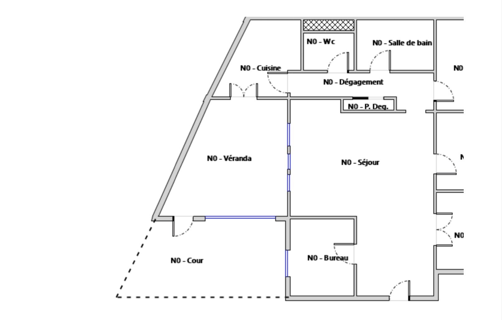
Votre agent Weloge vous propose à la vente en exclusivité, dans le secteur très recherché le Chapitre situé à proximité de la Gare Saint-Charles, Le Parc Longchamps un spacieux appartement lumineux d’une surface totale de 110m2 (92 m2 carrez) + une cour de 18 m2 dans une copropriété des années 60 de standing, composé d’une entrée desservant un vaste séjour, d’une cuisine indépendante équipée, de 3 belles chambres, d’une grande salle de bain, un WC indépendant et d’un bureau. Vous pourrez profiter d’une cour au clame absolu et d’une agréable véranda spacieuses. Dans un quartier vivant et animé avec le lycée Thiers à 10 min à pied et le Vieux Port et son marché de poisson à 2 km, la situation du bien bénéficie de toutes commodités bus, métro, tram, écoles, supermarché, accès rapide aux axes autoroutiers.
Prévoir travaux. Fort potentiel. Une cave de 7 m2 complète les atouts de cet appartement.
Très calme
Bien en copropriété charges annuelles de 2400 € (eau froide, chauffage, entretiens des communs, ascenseur)
Ce bien a été vendu par :

