A VENDRE MAISON Piscine Marseille 12è Secteur BEAUMONT SAINT-JULIEN
Description du bien
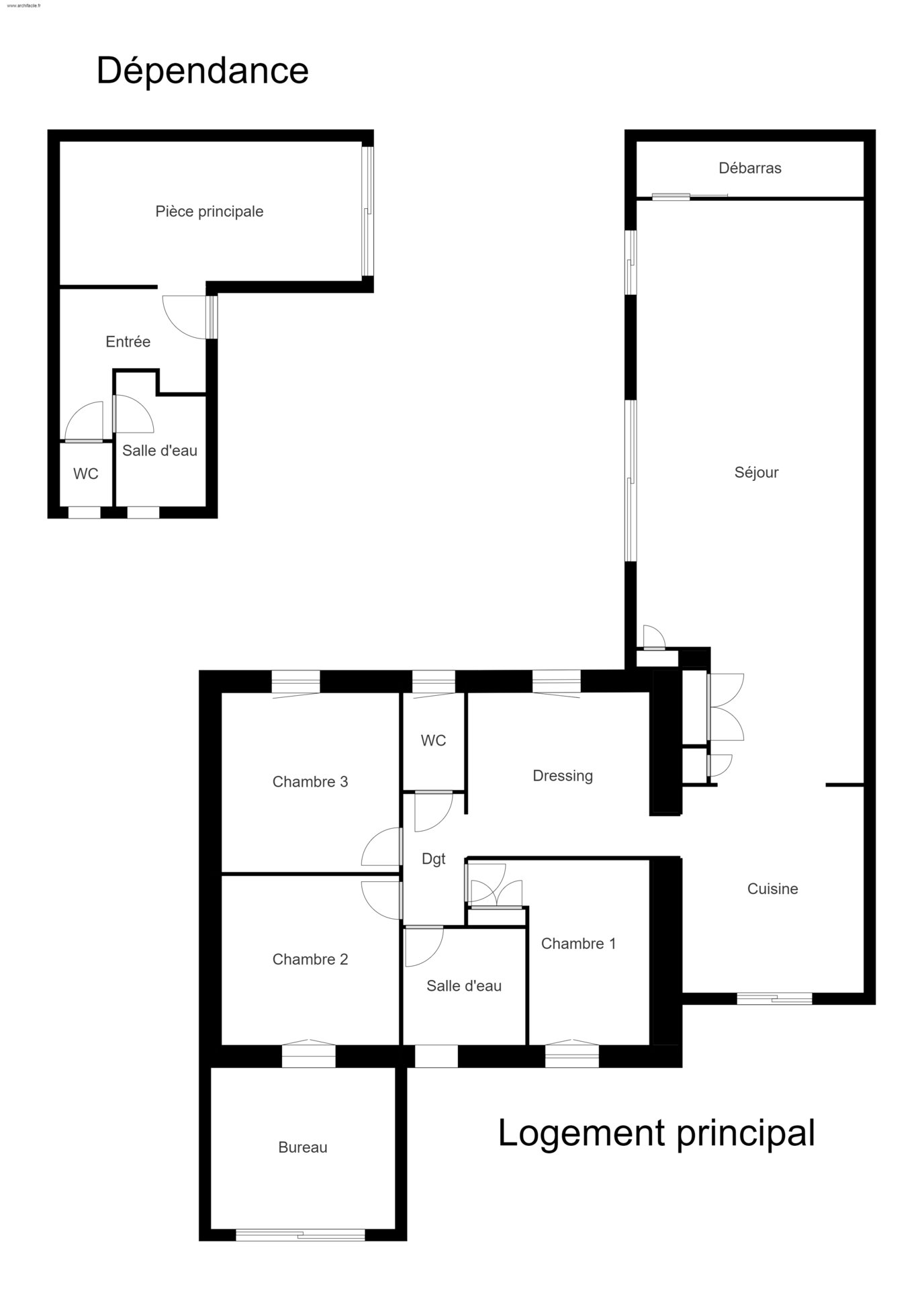
MAISON, PISCINE + STUDIO INDEPENDANT
Nichée au coeur du 12ème arrt, maison de plain-pied au charme méditerranéen.
Cette maison de 124m² sur une parcelle plate de 637m² aspire à la tranquillité ; saine et sans travaux à prévoir, elle dispose de belles prestations :
– panneaux solaires fournissant de l’eau chaude gratuitement pour la piscine, maison et studio. chauffe eau solaire d’une capacité de 500L.
– aspiration centralisée au sol
– climatisation
– piscine semi enterrée avec filtre à sable, pompe et système de chauffage
Vous vous loverez dans de grandes pièces lumineuses et bien disposées, les larges baies vitrées en galandage des pièces de jour permettent de belles ouvertures sur l’extérieur.
A l’abri des regards, vous serez séduits par l’ambiance intimiste et sans vis-à-vis de l’exterieur côté piscine; les couleurs chaudes d’une pierre chargée d’histoire d’un ancien Couvent donnent du caractère et une sensation de voyage au coeur de la méditerranée.
Le grand jardin situé au devant de la maison compte de nombreux arbres fruitiers dont vous en savourerez la récolte (vignes, olivier, abricotier, grenadier, néflier, jujubier)
Vous disposerez d’un abri de voiture, un cafoutch, pour les bricoleurs : une grande cave de 53m² avec électricité et transformée en véritable atelier !
L’ATOUT de cette maison est aussi son STUDIO INDEPENDANT moderne,bien isolé, chauffage au sol, avec cuisine, sdb et wc séparé.
ce studio vous offre un beau potentiel pour y accueillir vos proches ou y faire une belle rentabilité locative.
BEAUCOUP DE POTENTIEL pour ce bien que vous pourrez agrandir; les combles sont aménageables sur une surface de 53m².
pas de charges / TF 1565€/an
Ce bien a été vendu par :













