Maison 2 habitations – parcelle 740m2 – Centre ville

Maison /

La Ciotat /

13600 /

Ouest /

Description du bien

Votre agent Weloge vous propose en exclusivité à la vente en plein centre ville de La Ciotat cet ensemble immobilier.

Découvrez cette maison ancienne atypique sur une parcelle de 740m2 avec un petit bout vue mer.
Vous serez séduit par le calme et la proximité avec le centre ville.

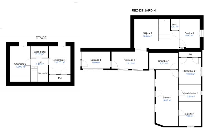
La maison est composée de deux habitations.
– une habitation de 84,5m2 sur deux niveaux avec salon, salle à manger, cuisine, deux chambres et une salle d’eau.
– une habitation de 46,1m2 avec salon, cuisine, une salle de bains et deux chambres.

Les deux habitations peuvent très facilement être réunies.

Deux dépendances de 20 et 12m2 viennent compléter les prestations de cette maison. (rafraîchissements à prévoir)

650000€

Réf : 5843698

Ce bien a été vendu par :

photo Sébastien Triton
Sébastien Triton
818 394 926 / RSAC MARSEILLE
06 52 19 12 91

En savoir plus sur ce bien ?

    Caractéristiques du bien

    Chambres : 2

    Type: Maison

    loi carrez: 130 m²

    surface habitable: 130.6 m²

    surface séjour: 18.8 m²

    vue: Dégagée

    balcon: non

    Chauffage: Electrique Individuel Radiateur

    Performances énergétique

    consommation conventionnelle: 252 kWhEP/m²/an

    E

    estimation émissions: 8 kg CO2/m².an

    B

    A proximité

    Centre ville (240 m),Commerces (320 m),Piscine publique (320 m),Plage (320 m),Port (240 m),,,,,,,,,,,,,,,,,,,,,,,,,,

    Liste des prestations

    Double vitrage,Barbecue,Fibre optique,,,,,,,,,,,,,,,,,,,,,,,,,,,,

    Liste des médias

    ,,,,,,,,,,

    5.60096

    43.17377

    Pin It on Pinterest