VENTE APPARTEMENT 2/3 PIÈCES AVEC JARDIN – LA CIOTAT – QUARTIER SAINT JEAN
Description du bien
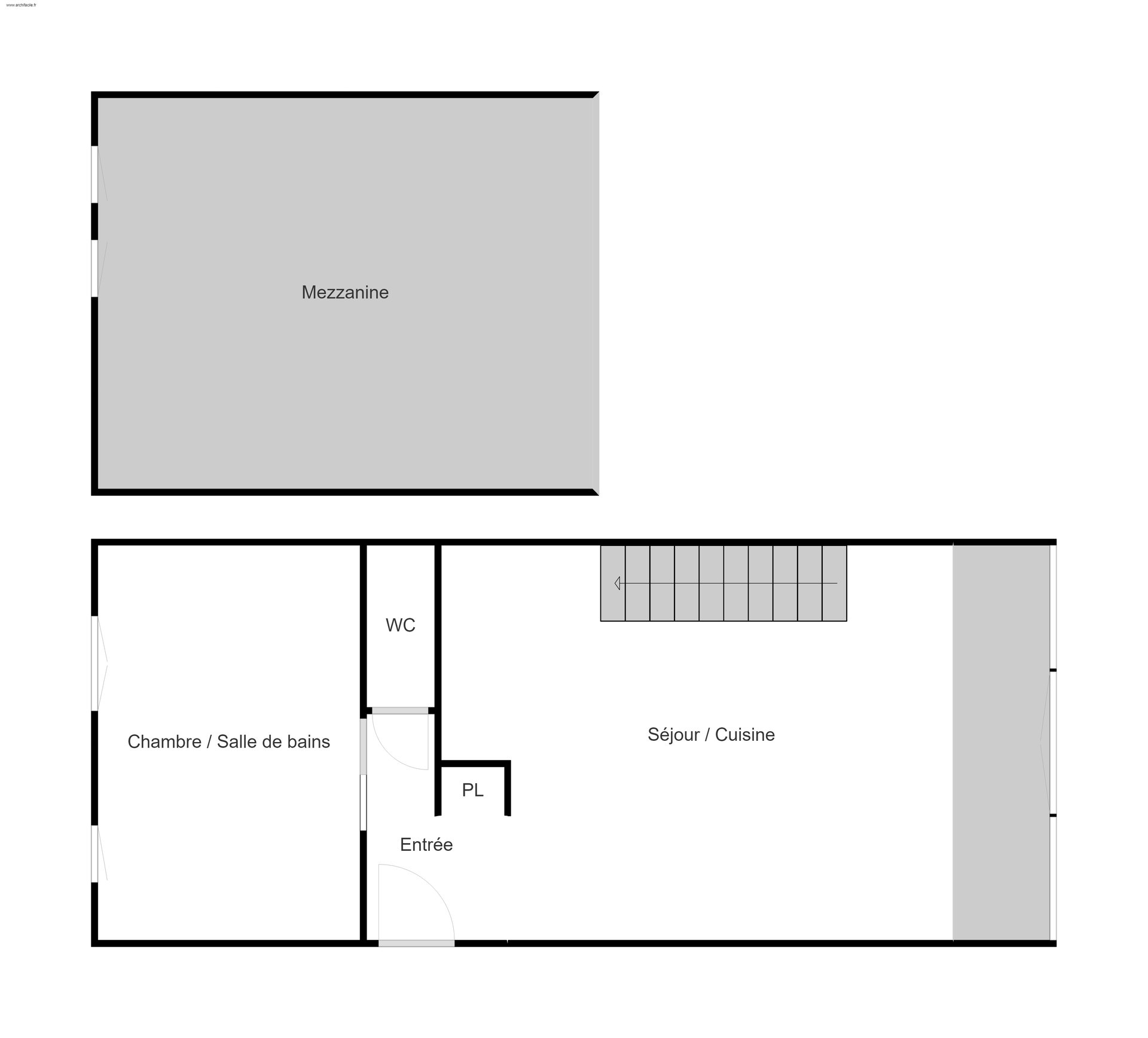
Votre agent vous propose à la vente en exclusivité dans la résidence « Bastide Saint Jean, » un très bel appartement de 2/3 pièces d’une superficie de 65 m2 (41,8 en loi carrez) avec jardin. A 5 minutes à pied de la plage et des commerces. L’appartement se compose d’un séjour ouvrant sur le jardin avec une cuisine ouverte aménagée. Une chambre avec salle de bain intégrée, des toilettes séparées. Une mezzanine avec cheminée qui peut faire office de 2ème chambre. Possibilité de box en sus du prix. Bien en copropriété de 137 lots. Charges annuelles 836€. Honoraires à la charge du vendeur.
Réf : 3610945
Ce bien a été vendu par :

Dominique De Saint Laurent
CEO Weloge
06 18 11 52 01













