VENTE APPARTEMENT 3 PIÈCES – 13012 MARSEILLE – TROIS LUCS
Description du bien
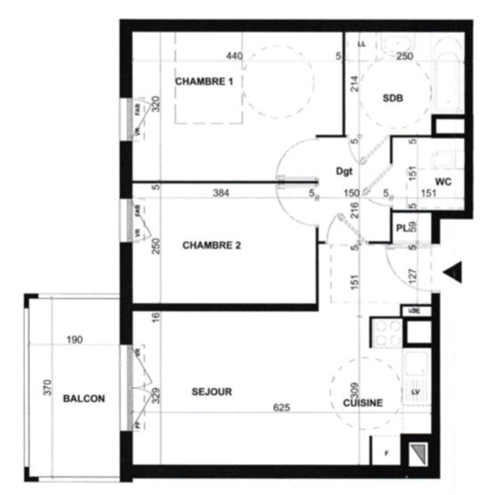
Votre agent WeLoge vous propose à la vente en exclusivité dans le 12ème arrondissement, traverse du Siphon, résidence Cap Terre, un appartement de trois pièces d’une superficie de 56 m2 situé au 3ème étage sur 4 avec ascenseur, terrasse et place de parking extérieur. Vue dégagée sur le Garlaban. Séjour avec cuisine ouverte et aménagée, deux chambres avec placard, salle de bain avec toilettes séparées. Accès pour personnes à mobilité réduite. A proximité immédiate des commerces et de la ligne de bus n°4. Double vitrage. Normes BBC. Possibilité d’une deuxième place de parking en sous-sol en sus du prix affiché. Bien en copropriété de 350 lots. Charges annuelles 1692€ comprenant eau chaude, eau froide et chauffage. Honoraires à la charge du vendeur.
Ce bien a été vendu par :










